受付時間 9:00〜18:00 水曜日定休0270-22-3311
連取元町貸店舗 新伊勢崎の賃貸テナント
※事業用物件は 賃料・共益費・管理費等が税別表記です
【スタッフからのイチオシポイント!】連取元町貸店舗伊勢崎市連取元町 店舗・事務所 駐車場9台有り飲食店不可・店舗・事務所・エステ美容サロン・ワークショップ
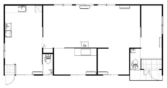
群馬県伊勢崎市連取元町【東武伊勢崎線 新伊勢崎駅徒歩31分】にある賃貸テナントです。トイレ2カ所・キッチン・洗濯機置き場・エアコン6基(すべて残置) ベイシア伊勢崎BP店東・近隣に商業施設多数 2014年10月築の1階建てのテナントで、物件は1階建ての1階部分です。物件の広さは92.75m2です。 ※物件のもっと詳しい内容や入居時期、諸条件のご相談など、ホームページには掲載が間に合わず載せきれていない情報もございます。 気になることが御座いましたらお気軽にメールにてお問い合わせください。
※各種情報と差異がある場合は現況優先となります
この物件に似た物件をチェック!閲覧した物件の履歴こだわり条件から伊勢崎市の物件を探す最近検索した条件一覧
| |||||||||||||||||||||||||||||||||||||||||||||||||||||||||||||||||||||||||||||||||
| ▲ページのTOPへ戻る | |||||||||||||||||||||||||||||||||||||||||||||||||||||||||||||||||||||||||||||||||


ピタットハウス伊勢崎店|株式会社グランディール
〒372-0802
群馬県伊勢崎市田中島町1400-7
TEL:0270-22-3311
FAX:0270-22-3312
営業時間:9:00〜18:00
定休日:水曜日